最新の業界知識を入手するにはウェブサイトを購読してください

24,000人のチャンネル登録者

当社のウェブサイトにご登録いただくと、最新の業界ニュース、限定製品オファー、そしてグリーン省エネのヒントをお届けします。また、お客様に最適な太陽光発電ソリューションをカスタマイズするお手伝いをさせていただく、専門コンサルティングサービスへの優先アクセスもご利用いただけます。ご登録いただくと、次回のご注文でさらに多くのサプライズや特典をご利用いただけます。高品質な太陽光発電製品をよりお得な価格で手軽にご購入いただけます。安心して、費用対効果が高く、環境に優しいグリーンライフスタイルを始めましょう!今すぐご登録いただき、グリーン省エネの旅を始めましょう!

Subscription Form (#2)

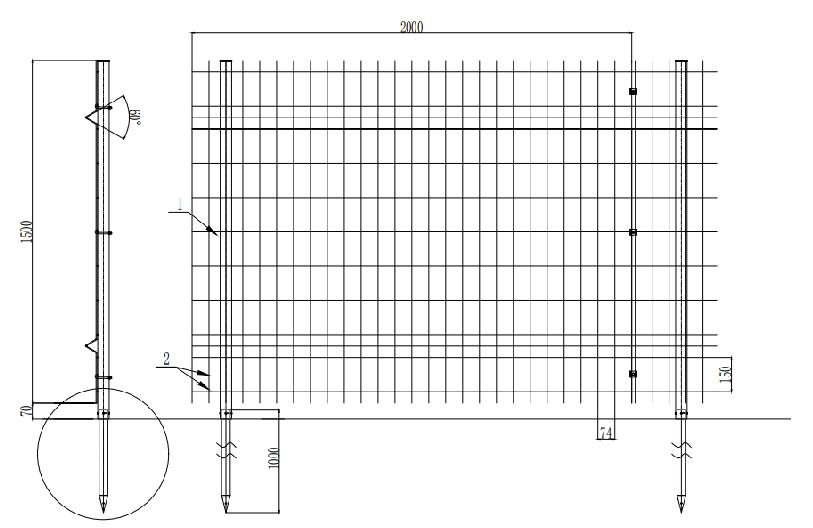
フェンス

フェンス-自社工場生産

弊社は架台とフェンスセット販売のために自社工場でフェンスの生産を行いました。フェンスは1本杭直接に打ち込みタイプ、コンクリート基礎タイプ、杭基礎打ち込みタイプなどがあります。長さと色はお客様の指定通り可能です。取付便利なので、お客様からいい評価をされたフェンスです。

1.フェンスの図面

2. 部 品 リ ス ト

3.柱の取付

  1. 支柱の打ち込み寸法とピッチは図面をご参照ください。
  2. 支柱を取付完了した後でキャップを取り付けます。

4.柱とフェンス取付

5.コーナー部、傾斜地